
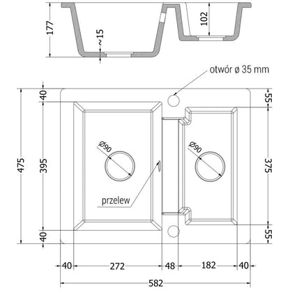
Mexen Carlos granitvask er en stilfuld 1,5-kammer vask, der kombinerer funktionalitet med et moderne udtryk. Den sorte vask med prikker tilfører et luksuriøst præg til ethvert køkken.
Fremstillet af slidstærkt granit bestående af 80 % granitgranulat og 20 % harpiks, hvilket sikrer høj modstandsdygtighed over for ridser, misfarvninger og termiske chok.
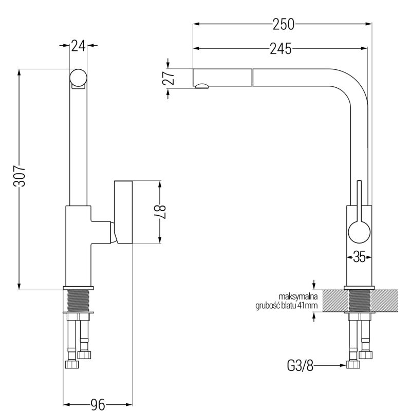
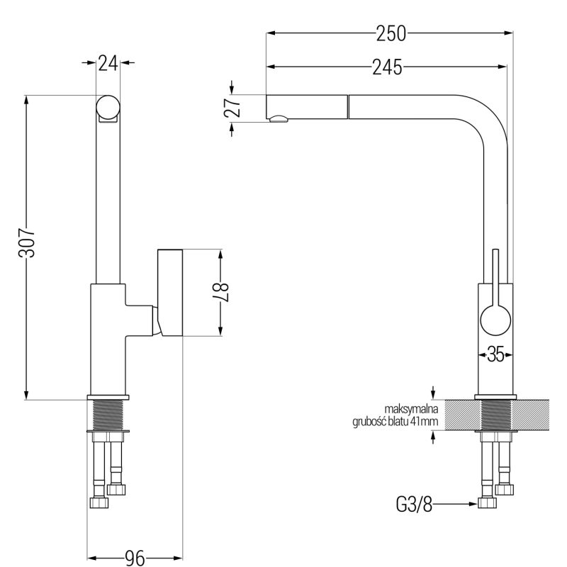
Medfølgende Flora køkkenarmatur i kromfarvet messing med keramisk kerne og perlator, der sikrer jævn vandstrøm og vandbesparelse. Det enkeltgrebsbetjente armatur har en tud med rækkevidde på 245 mm og en højde på 307 mm, hvilket giver både komfort og et moderne look.
Mexen Carlos er det perfekte valg for dig, der værdsætter kvalitet, holdbarhed og æstetik i køkkenet.